Beach Homes Realty
Enter City, Zip or MLS

444 little kinston road

Surf City, NC 28455

$975,000

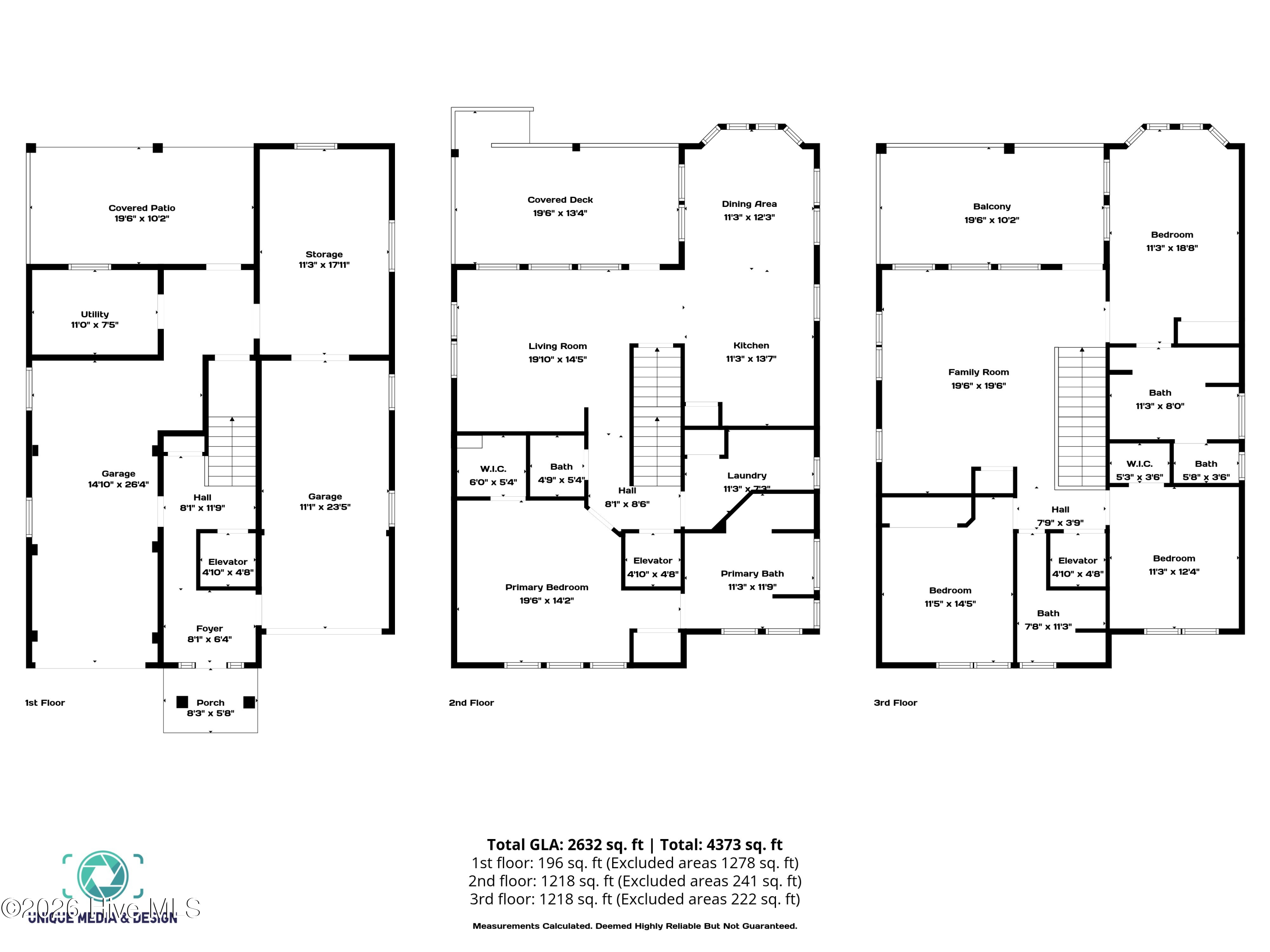
4 BEDS 4 BATHS
2,632 SQFT0.18 AC LOT
Residential - Single Family
Waterfront
Image 1
Image 2: Primary 2
Image 3
Image 4: Primary
Bedrooms 4
Total Baths 4
Full Baths 3
Square Feet 2632
Acreage 0.18
Status Active
MLS # 100551649
County Pender
More Info
Category Residential - Single Family
Status Active
Square Feet 2632
Acreage 0.18
MLS # 100551649
County Pender
Custom built waterfront home with breathtaking views over the sound to the ICW, within minutes to Topsail Island beaches. Decks on both floors with Trex deck flooring, Top quality construction built to 150 Wind Rated, 2 x 6 studs and walls, impacted rated windows, doors, and garage doors, hard plank siding painted in 2023 and metal roof. Interior features granite counters, reinforced game room floor with wet bar, 9ft ceilings, 80 gallon water heater and security cameras. For easy access, this home has a 3-stop elevator, Accessible doors, primary bath, and hallways. For furry friends a fully fenced in backyard. Move in ready please consider this home for primary or secondary.
Location not available

Exterior Features

  • Construction Single Family
  • Siding Metal
  • Exterior DP50 Windows, Thermal Doors
  • Roof Metal
  • Garage No
  • Garage Description On Site
  • Water Public
  • Sewer Municipal Sewer
  • Lot Dimensions 50x150x50x150
  • Lot Description Deeded Water Access, Deeded Water Rights, Deeded Waterfront, Salt Marsh

Interior Features

  • Appliances Vented Exhaust Fan, Mini Refrigerator, Electric Oven, Washer, Refrigerator, Ice Maker, Dryer, Disposal, Dishwasher, Electric Range
  • Heating Heat Pump, Fireplace(s), Electric
  • Cooling Central Air, Ceiling Fan(s)2, Heat Pump
  • Fireplaces Yes
  • Fireplaces Description Gas Log
  • Living Area 2,632 SQFT
  • Year Built 2007

Neighborhood & Schools

  • Subdivision Sears Landing
  • Elementary School Surf City
  • Middle School Surf City
  • High School Topsail

Financial Information

  • Parcel ID 4235-41-3764-0000

Additional Services

Internet Service Providers

Listing Information

Listing Provided Courtesy of Coastal Carolina Real Estate
The data for this listing came from the Hive MLS.
Listing data is current as of 02/20/2026.

Contact Our Agent

By clicking “Submit”, you agree that Beach Homes Realty, its affiliates, and real estate professionals may contact you by phone, text, or email to any phone number and email address you provided, including by automated means, even if your number is on a federal, state, or our internal Do Not Call list. You also agree to our Terms of Use and Privacy Policy.