Beach Homes Realty
Enter City or Zip

409 n lord street

Southport, NC 28461

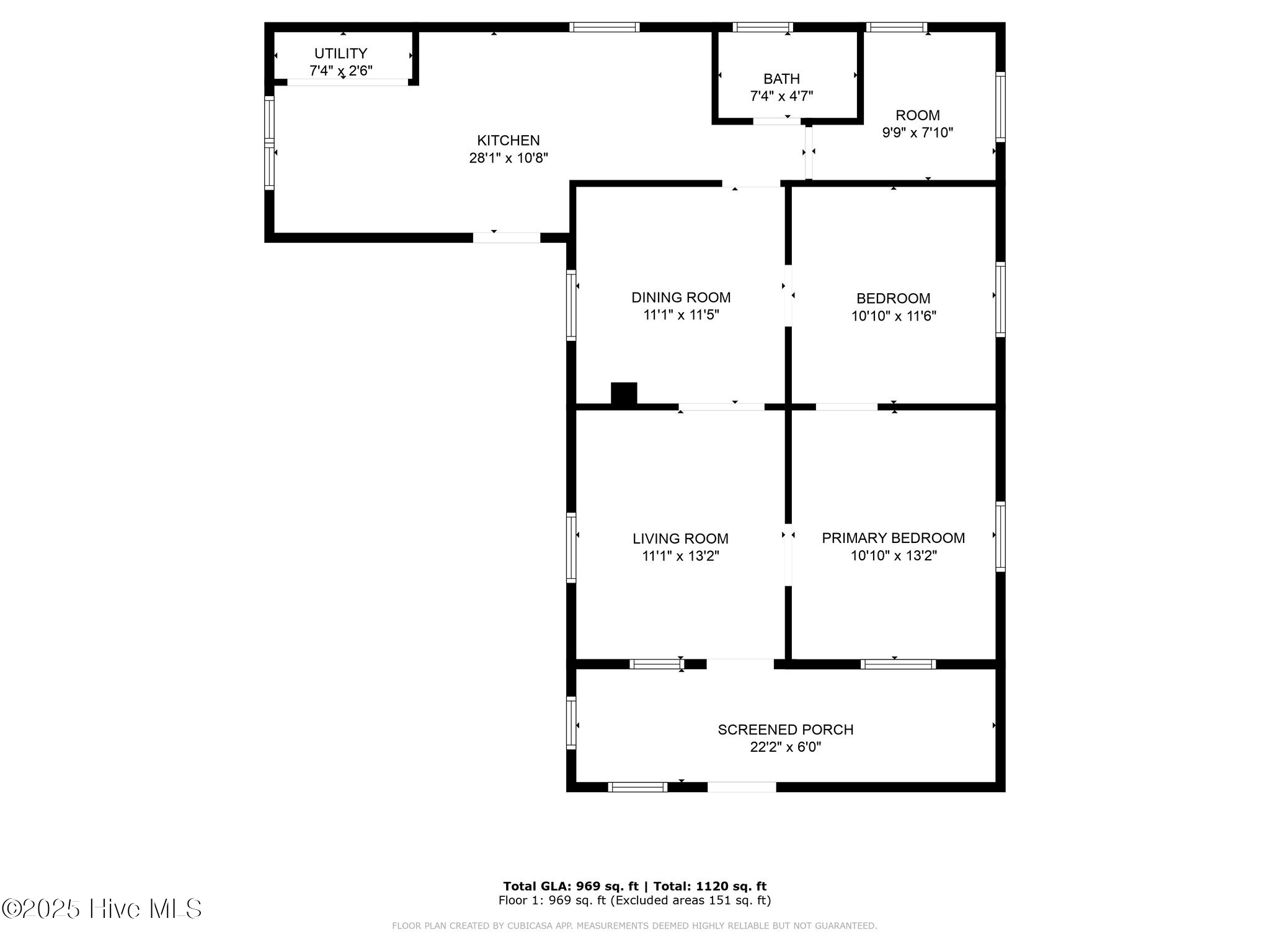
2 BEDS 1-Full BATH
0.05 AC LOT
Residential - Single Family
Image 1
Bedrooms 2
Total Baths 1
Full Baths 1
Acreage 0.06
Status Off Market
MLS # 100531793
County Brunswick
More Info
Category Residential - Single Family
Status Off Market
Acreage 0.06
MLS # 100531793
County Brunswick
A unique hidden treasure is located merely a few blocks from the stunning Southport waters. This residence includes 2 bedrooms and 1 bathroom, along with a covered front porch. Located within city limits with city water and sewer available. Although it necessitates a full renovation, it continues to be a hidden gem poised for restoration to its original splendor. Importantly, the property is not included in a subdivision, offering the possibility of a more economical and adaptable living situation without HOA fees. Engaging a contractor for this property is advisable.
Location not available

Exterior Features

  • Construction Single Family
  • Siding Composition
  • Roof Composition
  • Garage No
  • Garage Description Unpaved, Off Street
  • Lot Dimensions 45.33 X 65
  • Lot Description Interior Lot

Interior Features

  • Appliances See Remarks
  • Heating None, Electric
  • Cooling None
  • Basement None
  • Fireplaces No
  • Fireplaces Description None
  • Year Built 1971

Neighborhood & Schools

  • Subdivision Not In Subdivision
  • Elementary School Southport
  • Middle School South Brunswick
  • High School South Brunswick

Financial Information

  • Parcel ID 237lb026