Beach Homes Realty
Enter City, Zip or MLS
WaterfrontPrice Changed

387 w first street

Ocean Isle Beach, NC 28469

$4,685,000

10 BEDS 10 BATHS
5,390 SQFT0.41 AC LOT
Residential - Single Family
WaterfrontPrice Changed
Image 1: 00_2-web-or-mls-CAMMediaLLC.com twi--7
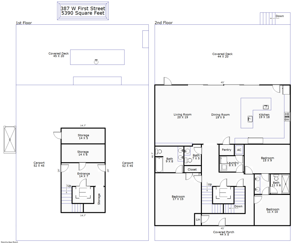
Image 2: Floor Plan 1
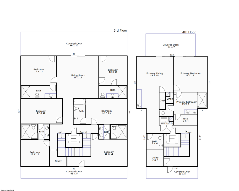
Image 3: Floor Plan 2
Image 4: 00_3-web-or-mls-CAMMediaLLC.com twi--3
Bedrooms 10
Total Baths 10
Full Baths 8
Square Feet 5390
Acreage 0.42
Status Active
MLS # 100559556
County Brunswick
More Info
Category Residential - Single Family
Status Active
Square Feet 5390
Acreage 0.42
MLS # 100559556
County Brunswick
Welcome to your private paradise. This breathtaking, three-story oceanfront home, nestled on the sought-after west end of the island, lets you seamlessly indulge in coastal living where the salty air sweeps in with the ocean waves. With more than 5,000 square feet of stylish living space, this property is the ultimate beachside retreat, perfectly designed for large families, group getaways, or special events. This extraordinary property isn't just a dream home; it's an exceptional investment opportunity, generating multiple six figures in rental income annually. This remarkable residence boasts 10 spacious bedrooms, 8 full baths, and 2 half baths, comfortably accommodating up to 39 guests. Elevator access to every floor ensures convenience for all guests, while the home's thoughtful handicap-accessible design provides comfort and accessibility for everyone. Every corner of the home is thoughtfully crafted to provide a luxurious and relaxing atmosphere, with stunning views of the Atlantic Ocean visible from nearly every room. Upon arrival, you'll be greeted by the grandeur of this expansive property, which boasts exceptional amenities. Step outside to experience your ultimate outdoor oasis, featuring a heated oceanfront saltwater pool and spa jacuzzi where you can soak up the sun and enjoy the refreshing ocean breeze. Host unforgettable gatherings at the outdoor kitchen equipped with two gas grills and a large 14-foot bar, perfect for dining alfresco while enjoying the game at the entertainment center. The backyard features artificial turf and drip lines for the many palms that line the home, offering low-maintenance living, so you can spend more time at the beach. The expansive oceanfront decks offer spectacular views of this south-facing beach, perfect for watching the sun rise over the ocean or set in a blaze of color from your own back porch. With your private walkover to the beach, endless days on the pristine sands of Ocean Isle await you. The chef-inspired main kitchen is equipped with premium appliances, including a side-by-side refrigerator, a full-size freezer, dual sinks, two ovens, a 8-burner stove, and a beverage station with an ice maker. Whether you're preparing meals for a crowd or entertaining, this space is as functional as it is elegant. Two laundry rooms make it easy to accommodate the needs of multiple families or large groups during extended stays. Whether you seek a family retreat or a superior income-producing property, this home offers unparalleled views, luxurious amenities, and a prime location, making it highly desirable for vacation rentals. Don't miss the chance to own this exquisite oceanfront property, create unforgettable memories with family and friends, or generate substantial rental income. This truly is a one-of-a-kind opportunity to own a slice of paradise in one of the most desirable locations on Ocean Isle Beach.
Location not available

Exterior Features

  • Construction Single Family
  • Siding Metal
  • Exterior Outdoor Shower, Irrigation System, Gas Grill, Outdoor Kitchen, Outdoor Grill
  • Roof Metal
  • Garage Yes
  • Garage Description Garage Faces Front, Attached, Gravel, Off Street, Tandem, Garage, Underhouse
  • Water Public
  • Sewer Municipal Sewer, City/Town
  • Lot Dimensions 60x292x65x291
  • Lot Description Dead End, Dunes, Ocean Side

Interior Features

  • Appliances Electric Oven, Freezer, Washer, Refrigerator, Ice Maker, Dryer, Double Oven, Disposal, Dishwasher, Tankless Water Heater, Gas Range
  • Heating Propane, Heat Pump, Forced Air
  • Cooling Central Air, Ceiling Fan(s), Heat Pump, Multi Units
  • Living Area 5,390 SQFT
  • Year Built 2024

Neighborhood & Schools

  • Subdivision Islander Resort
  • Elementary School Union
  • Middle School Shallotte Middle
  • High School West Brunswick

Financial Information

  • Parcel ID 257jc020

Additional Services

Internet Service Providers

Listing Information

Listing Provided Courtesy of Compass Carolinas LLC
The data for this listing came from the Hive MLS.
Listing data is current as of 05/23/2026.

Contact Our Agent

By clicking “Submit”, you agree that Beach Homes Realty, its affiliates, and real estate professionals may contact you by phone, text, or email to any phone number and email address you provided, including by automated means, even if your number is on a federal, state, or our internal Do Not Call list. You also agree to our Terms of Use and Privacy Policy.