Beach Homes Realty
Enter City, Zip or MLS
Price Changed

55 accolade drive

Surf City, NC 28445

$1,464,999

4 BEDS 4 BATHS
2,700 SQFT0.12 AC LOT
Residential - Single Family
Price Changed
Image 1: 1_drone
Image 2
Image 3: 1_drone
Image 4: 3_drone
Bedrooms 4
Total Baths 4
Full Baths 3
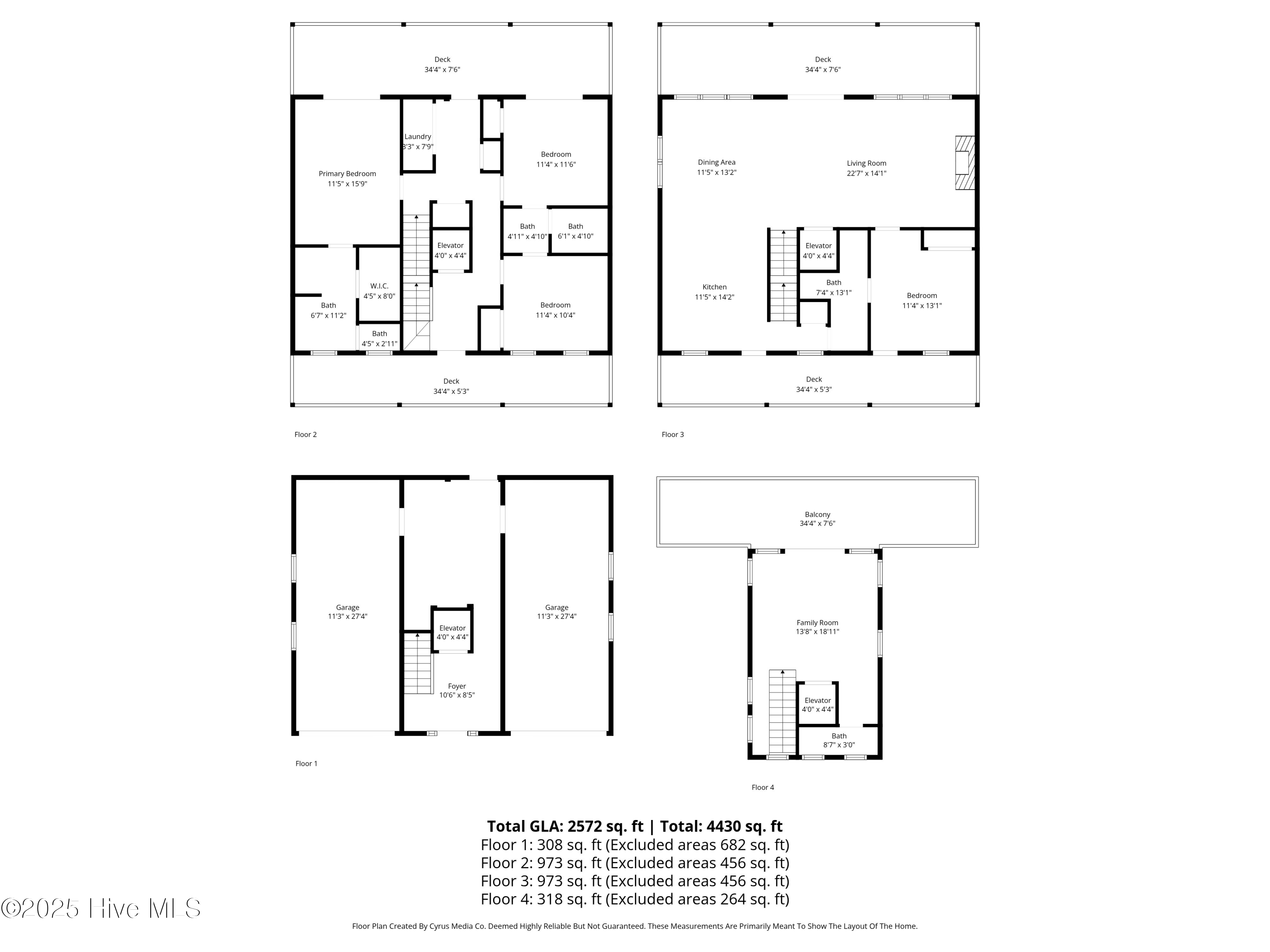
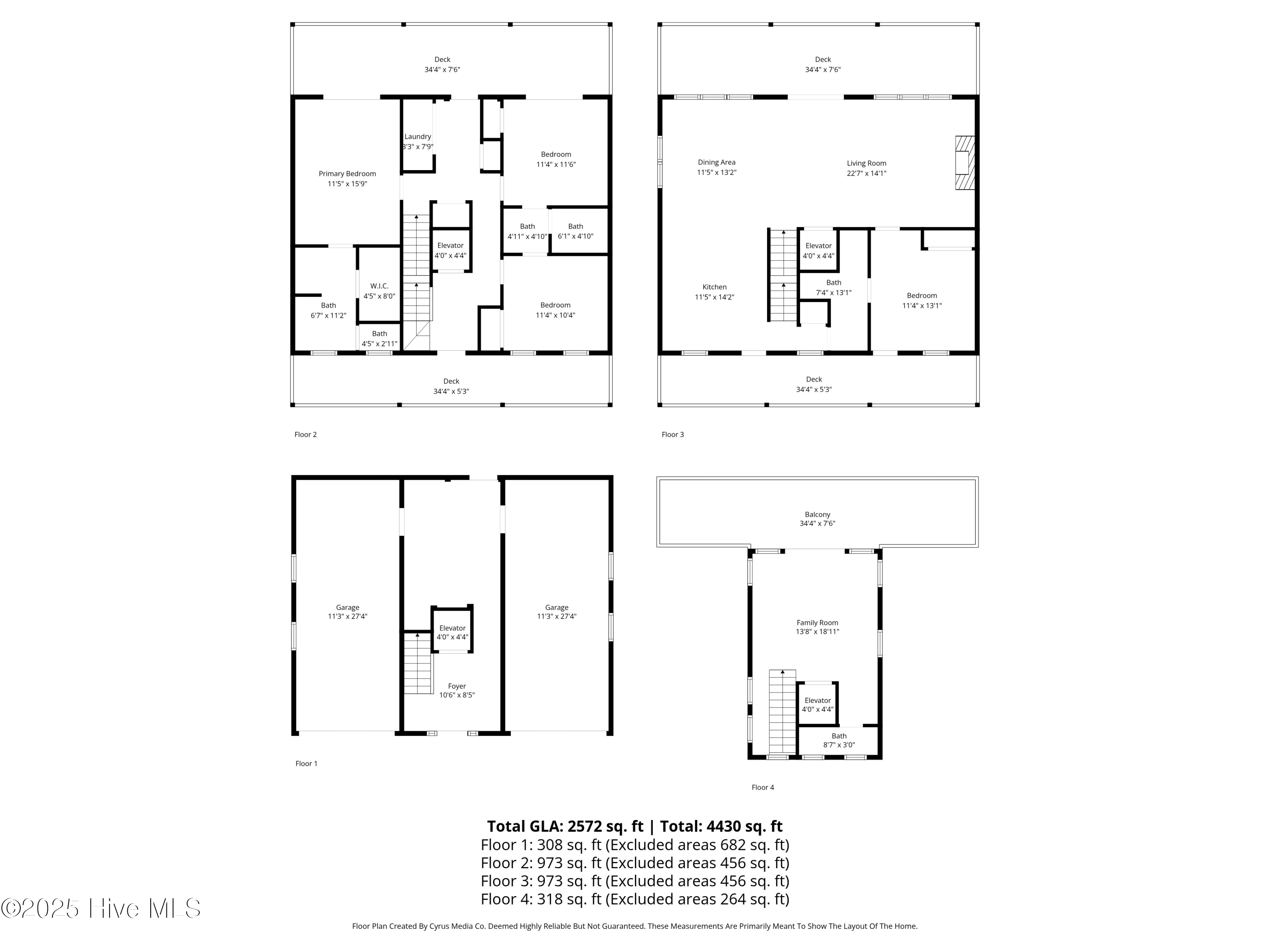
Square Feet 2700
Acreage 0.13
Status Active
MLS # 100543064
County Pender
More Info
Category Residential - Single Family
Status Active
Square Feet 2700
Acreage 0.13
MLS # 100543064
County Pender
Experience elevated coastal living in this brand-new custom-built luxury home, perfectly designed to showcase breathtaking views of both the Atlantic Ocean and the Intracoastal Waterway. With balconies on every level and an exceptional fourth-floor cupola opening to a spacious 360-degree viewing deck, every sunrise, sunset, and sea breeze becomes part of everyday life. Ambient deck lighting creates the perfect atmosphere for evening relaxation, while the ground-level outdoor entertainment area and convenient outdoor shower make beach days effortless. Public beach access conveniently located across the street! Inside, modern elegance meets premium comfort. The thoughtfully designed floor plan features two luxurious primary suites, a whole-home SONOS audio system extending throughout the interior and rear exterior decks, and immersive surround sound in the great room. Smart-home security includes a Ring floodlight camera, video doorbell, and full security system for added peace of mind. Located just 2.5 miles from the heart of Surf City, this home offers quick access to local dining, shopping, the iconic Surf City Pier, public boat launches, Soundside Park, and all the attractions Topsail Island is known for. Situated within the highly sought-after Accolade community, residents enjoy resort-style amenities including the island's largest swimming pool featuring a waterfall, tanning ledge, and in-water seating. The open-air clubhouse offers a full kitchen, restrooms, fireplace, and flexible gathering spaces ideal for entertaining. Scenic walking trails meander beneath mature live oaks and through peaceful natural surroundings, creating the perfect balance of luxury and tranquility. And with beach access directly across the street, the coastal lifestyle couldn't be more convenient. This is more than a home--it's a private luxury retreat on Topsail Island. Rarely does an opportunity like this become available in one of the island's premier communities.
Location not available

Exterior Features

  • Construction Single Family
  • Siding Metal
  • Exterior Outdoor Shower, Irrigation System
  • Roof Metal
  • Garage Yes
  • Garage Description Garage Faces Front, Additional Parking, Garage Door Opener, Lighted
  • Sewer Septic Tank
  • Lot Dimensions 13-14'
  • Lot Description Interior Lot

Interior Features

  • Heating Propane, Heat Pump, Fireplace(s), Electric
  • Cooling Heat Pump
  • Basement None
  • Fireplaces Yes
  • Fireplaces Description Gas Log
  • Living Area 2,700 SQFT
  • Year Built 2025

Neighborhood & Schools

  • Subdivision Accolade
  • Elementary School Surf City
  • Middle School Surf City
  • High School Topsail

Financial Information

  • Parcel ID 352d-22

Additional Services

Internet Service Providers

Listing Information

Listing Provided Courtesy of Coastal Properties
The data for this listing came from the Hive MLS.
Listing data is current as of 05/23/2026.

Contact Our Agent

By clicking “Submit”, you agree that Beach Homes Realty, its affiliates, and real estate professionals may contact you by phone, text, or email to any phone number and email address you provided, including by automated means, even if your number is on a federal, state, or our internal Do Not Call list. You also agree to our Terms of Use and Privacy Policy.