Beach Homes Realty
Enter City or Zip

503 swan court

Beaufort, NC 28516

$1,750,000

4 BEDS 3.5 BATHS
3,358 SQFT0.34 AC LOT
Residential - Single Family
Image 1: Fairbank Rendering
Image 2: 503 Swan Court Lot Location
Image 3: Similar Construction
Image 4: Similar Construction
Bedrooms 4
Total Baths 4
Full Baths 3
Square Feet 3358
Acreage 0.35
Status Active
MLS # 100517425
County Carteret
More Info
Category Residential - Single Family
Status Active
Square Feet 3358
Acreage 0.35
MLS # 100517425
County Carteret
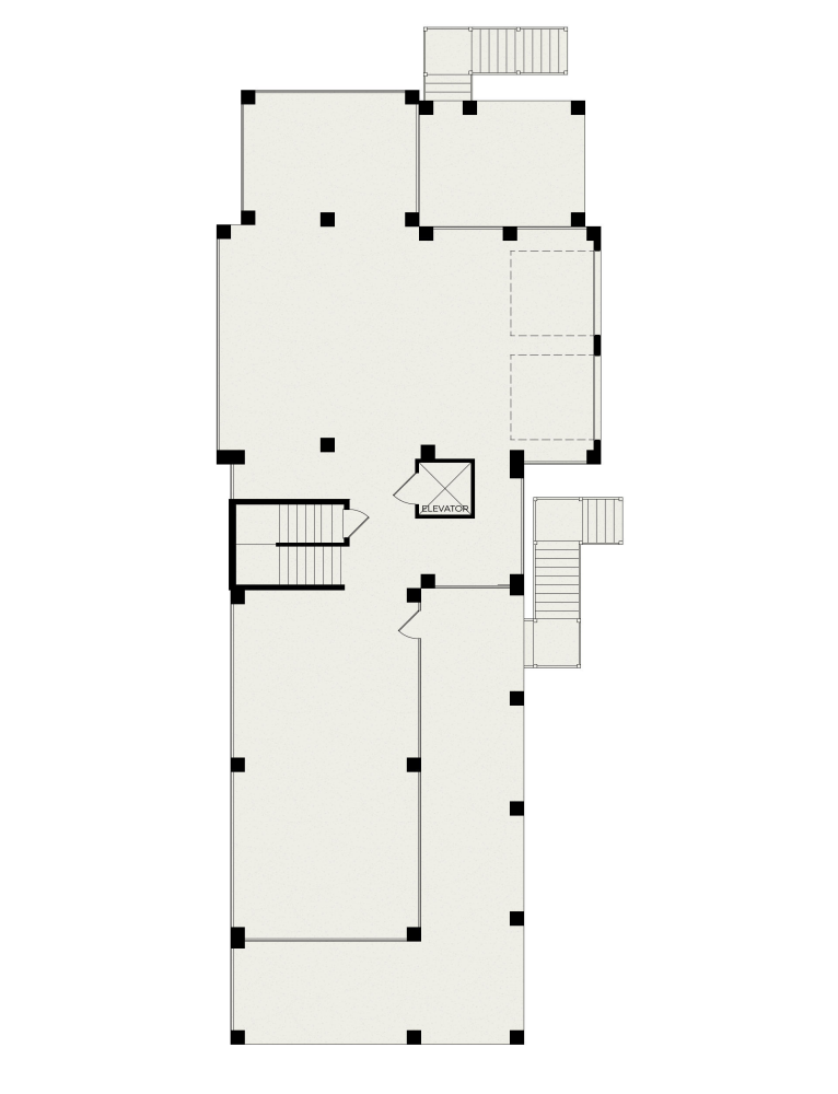
Welcome to 503 Swan Court, where timeless design meets laid-back coastal living! This stunning new construction home by Homes by Dickerson features the thoughtfully designed Fairbank floor plan with 4 spacious bedrooms, 3.5 baths, and beautifully curated finishes throughout. On the main level, enjoy the comfort and privacy of a spacious primary suite complete with a spa-like en-suite bathroom- your personal retreat after a day on the water. The open-concept layout flows seamlessly through the bright living area, chef-inspired kitchen with a large island and walk-in pantry, and a welcoming dining space perfect for everyday living or entertaining. Upstairs, you'll find three additional bedrooms and a generous recreation room with a built-in wet bar ideal for movie nights, game days, or hosting guests in style. Outdoor living shines with both a charming covered front porch and a large screened in back porch- perfect sports for relaxing and enjoying the coast breeze. Located in Beau Coast, residents enjoy an exceptional amenities including a resort-style pool, clubhouse, fitness center, trader retail shops, pickleball courts, a dog park, community garden, walking trails, and a kayak launch. Plus, you're just a quick ride from historic Downtown Beaufort with its waterfront dining, boutique shopping, and small-town charm. Don't miss your opportunity to call 503 Swan Court home- schedule your tour today and experience the elevated lifestyle of the Fairbank floor plan in Beau Coast!
Location not available

Exterior Features

  • Construction Single Family
  • Siding Architectural Shingle, Metal
  • Roof Architectural Shingle, Metal
  • Garage No
  • Garage Description Garage Faces Side, Off Street, Paved
  • Water Municipal Water
  • Sewer Municipal Sewer
  • Lot Dimensions See Plat Map in Documents

Interior Features

  • Appliances Vented Exhaust Fan, Built-In Microwave, Range, Humidifier/Dehumidifier, Dishwasher
  • Heating Propane, Heat Pump, Floor Furnace, Electric, Zoned
  • Cooling Zoned
  • Living Area 3,358 SQFT
  • Year Built 2025

Neighborhood & Schools

  • Subdivision Beau Coast
  • Elementary School Beaufort
  • Middle School Beaufort
  • High School East Carteret

Financial Information

  • Parcel ID 731617118359000
  • Zoning PUD

Additional Services

Internet Service Providers

Listing Information

Listing Provided Courtesy of Keller Williams Crystal Coast
 The data relating to real estate on this web site comes in part from the Internet Data Exchange program of Hive MLS, and is updated as of 09/18/2025. All information is deemed reliable but not guaranteed and should be independently verified. All properties are subject to prior sale, change, or withdrawal. Neither listing broker(s) nor [name of IDX Participant’s firm] shall be responsible for any typographical errors, misinformation, or misprints, and shall be held totally harmless from any damages arising from reliance upon these data. © 2025 Hive MLS
Listing data is current as of 09/18/2025.

Contact our Agent !

By clicking “Submit”, you agree that Beach Homes Realty, its affiliates, and real estate professionals may contact you by phone, text, or email to any phone number and email address you provided, including by automated means, even if your number is on a federal, state, or our internal Do Not Call list. You also agree to our Terms of Use and Privacy Policy.