Beach Homes Realty
Enter City or Zip
New Listing

4266 grand view boulevard

Los Angeles, CA 90066

$2,985,000

5 BEDS 4-Full 1-Half BATHS
3,000 SQFT0.12 AC LOT
Residential - Single Family
New Listing
Image 1
Image 2
Image 3
Image 4
Bedrooms 5
Total Baths 5
Full Baths 4
Square Feet 3000
Acreage 0.1288
Status Active
MLS # 25612835
County Los Angeles
More Info
Category Residential - Single Family
Status Active
Square Feet 3000
Acreage 0.1288
MLS # 25612835
County Los Angeles
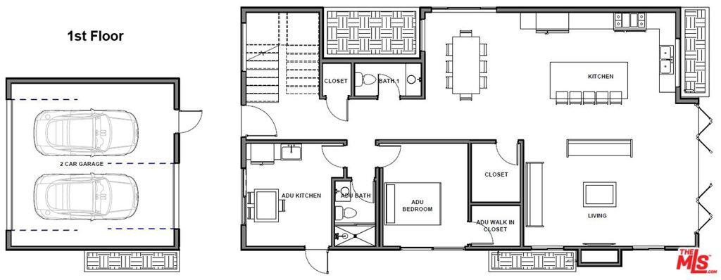
Stunning New Construction 4-Bedroom plus Office (5th Bedroom) Home, currently under construction in Mar Vista! Scheduled for completion December 2025. This luxurious, high-end residence blends contemporary design with the comfort and sophistication of modern living. Situated on a spacious lot, this home boasts an open-concept layout with expansive windows, allowing natural light to flood every corner of the space. The chef's kitchen features top-of-the-line appliances, sleek cabinetry, and a large island perfect for entertaining. The spacious living and dining areas flow seamlessly, leading to a private backyard oasis. The flexible design offers a first floor suite that can be closed and used as a separate apartment with its own kitchenette and private entrance, or opened to be used as a private office and private guest suite. With three bedrooms & 3 bathrooms upstairs including an incredible primary suite with a retreat-like atmosphere with a spa-inspired bathroom, custom walk-in closets, and private balcony. Each additional bedroom is generously sized with high-end finishes and ample closet space and their own en-suite bathrooms. The detached garage would make a great gym or art studio. With impeccable attention to detail, this Mar Vista gem offers the perfect blend of comfort, style and sophistication.
Location not available

Exterior Features

  • Style Modern
  • Construction Single Family
  • Garage Yes
  • Garage Description DoorMulti, Driveway, Garage
  • Lot Description Yard

Interior Features

  • Appliances Dishwasher, Disposal, Microwave, Refrigerator, Dryer, Washer
  • Heating Central
  • Cooling CentralAir
  • Fireplaces Yes
  • Fireplaces Description Gas, LivingRoom
  • Living Area 3,000 SQFT
  • Year Built 2025

Financial Information

  • Parcel ID 4232016021
  • Zoning LAR1

Additional Services

Internet Service Providers

Listing Information

Listing Provided Courtesy of Keller Williams Los Angeles
The data for this listing came from the California Regional MLS
Listing data is current as of 11/05/2025.
California DRE #02247371

Contact our Agent !

By clicking “Submit”, you agree that Beach Homes Realty, its affiliates, and real estate professionals may contact you by phone, text, or email to any phone number and email address you provided, including by automated means, even if your number is on a federal, state, or our internal Do Not Call list. You also agree to our Terms of Use and Privacy Policy.