Beach Homes Realty
Enter City or Zip
WaterfrontNew Listing

134 hickory knoll road

Wilmington, NC 28409

$715,000

4 BEDS 3 BATHS
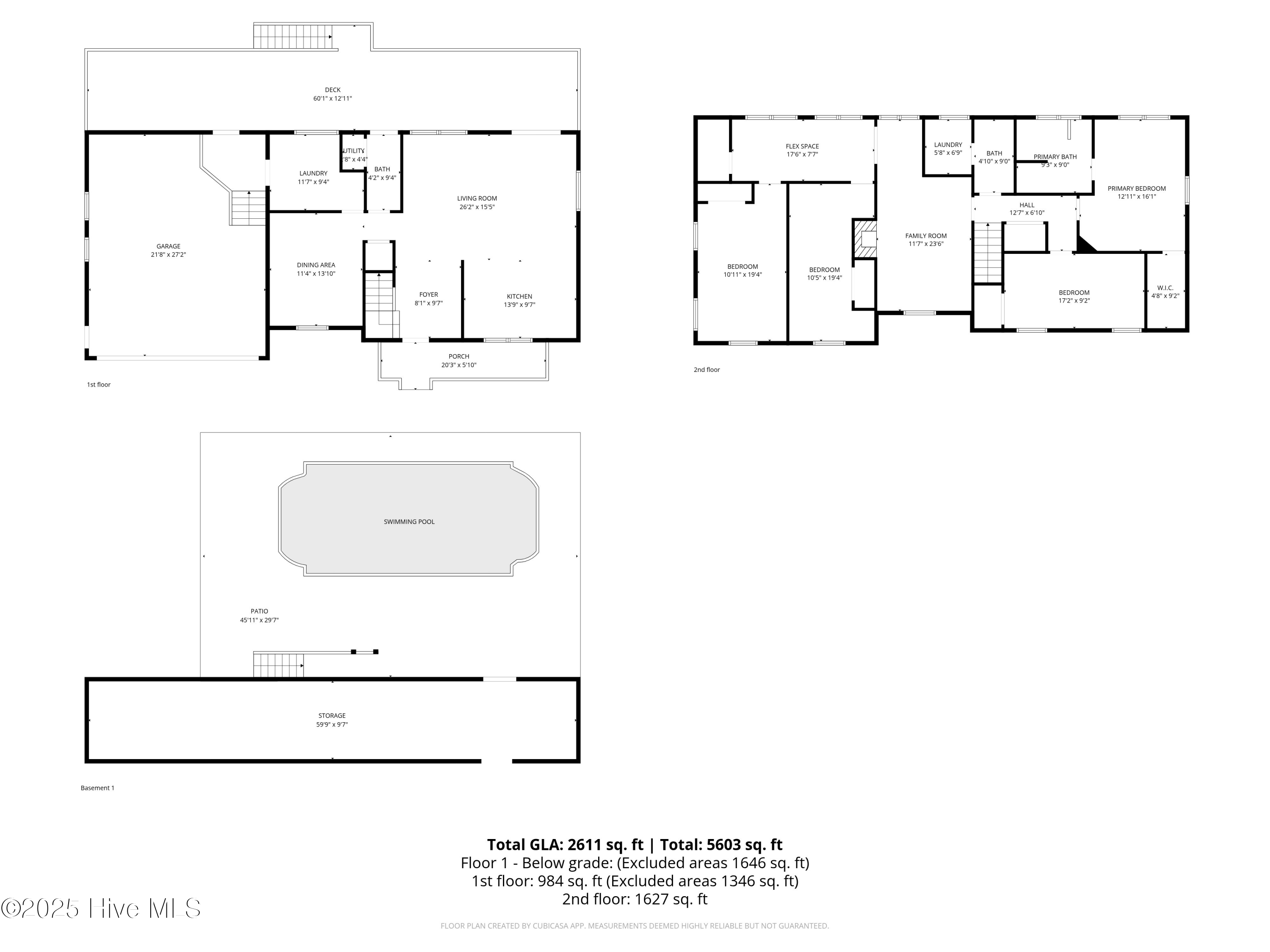
2,611 SQFT0.4 AC LOT
Residential - Single Family
WaterfrontNew Listing
Image 1
Image 2: 1_501a2285 (1)
Image 3: 134 Hickory Knolls Front
Image 4
Bedrooms 4
Total Baths 3
Full Baths 2
Square Feet 2611
Acreage 0.41
Status Active Under Contract
MLS # 100542075
County New Hanover
More Info
Category Residential - Single Family
Status Active Under Contract
Square Feet 2611
Acreage 0.41
MLS # 100542075
County New Hanover
Experience timeless charm and relaxed coastal living in this beautifully maintained 4-bedroom home overlooking Everett Creek. Peaceful water views surround you from nearly every angle — even from your private in-ground saltwater pool. It's truly a coastal dream come true. The main level features wood flooring and an open-concept kitchen and family room designed to showcase the stunning marsh views. A formal dining room offers an inviting space for gatherings, while a spacious mudroom off the 2 car garage adds everyday convenience. Upstairs, the primary suite captures breathtaking views of the waterway, joined by three additional bedrooms. A cozy upstairs family room with a wood burning fireplace creates the perfect setting for movie nights or quiet evenings in. A bright, versatile area outside bedrooms three and four provides the ideal spot for a home office, reading nook, or playroom — all with inspiring water views. Just outside your main level living area is a large covered porch and expansive deck overlooking the marsh, perfect for entertaining, relaxing, or watching friends and family enjoy the pool and fenced in yard. Need room for multiple vehicles or your boat? The oversized driveway provides ample parking. The quiet community of Hickory Knoll also offers a small craft boat launch at the end of Royal Oak Drive. A minimal boat club fee is required for launch privileges, NO HOA. This classic waterfront retreat offers the best of Wilmington living - ready for you to make it your own.
Location not available

Exterior Features

  • Construction Single Family
  • Siding Architectural Shingle, See Remarks
  • Exterior Outdoor Shower
  • Roof Architectural Shingle, See Remarks
  • Garage Yes
  • Garage Description Garage Door Opener, Off Street, Paved
  • Water Public
  • Sewer Septic Tank
  • Lot Dimensions 90x200x94x200
  • Lot Description Deeded Water Access, Deeded Waterfront, Navigable Water, Water Access Comm

Interior Features

  • Appliances Electric Oven, Electric Cooktop, Built-In Microwave, Refrigerator, Disposal, Dishwasher
  • Heating Electric, Forced Air
  • Cooling Central Air
  • Basement None
  • Living Area 2,611 SQFT
  • Year Built 1980

Neighborhood & Schools

  • Subdivision Hickory Knoll
  • Elementary School Bellamy
  • Middle School Murray
  • High School Ashley

Financial Information

  • Parcel ID R07911-004-001-000

Additional Services

Internet Service Providers

Listing Information

Listing Provided Courtesy of Nest Realty
The data for this listing came from the Hive MLS.
Listing data is current as of 12/09/2025.

Contact Our Agent

By clicking “Submit”, you agree that Beach Homes Realty, its affiliates, and real estate professionals may contact you by phone, text, or email to any phone number and email address you provided, including by automated means, even if your number is on a federal, state, or our internal Do Not Call list. You also agree to our Terms of Use and Privacy Policy.