Beach Homes Realty
Enter City, Zip or MLS
Waterfront

205 back street

Newport, NC 28570

$2,750,000

4 BEDS 4 BATHS
3,923 SQFT0.28 AC LOT
Residential - Single Family
Waterfront
Image 1: Front Elevation
Image 2
Image 3: Front Elevation
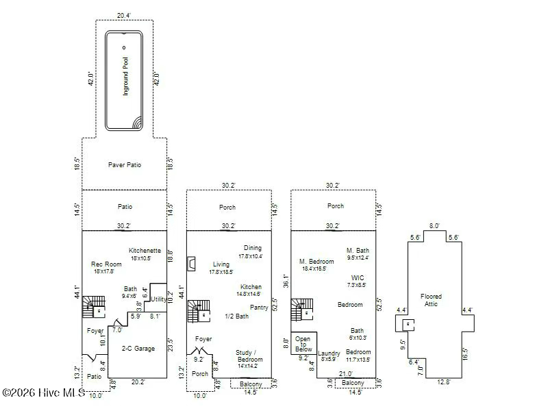
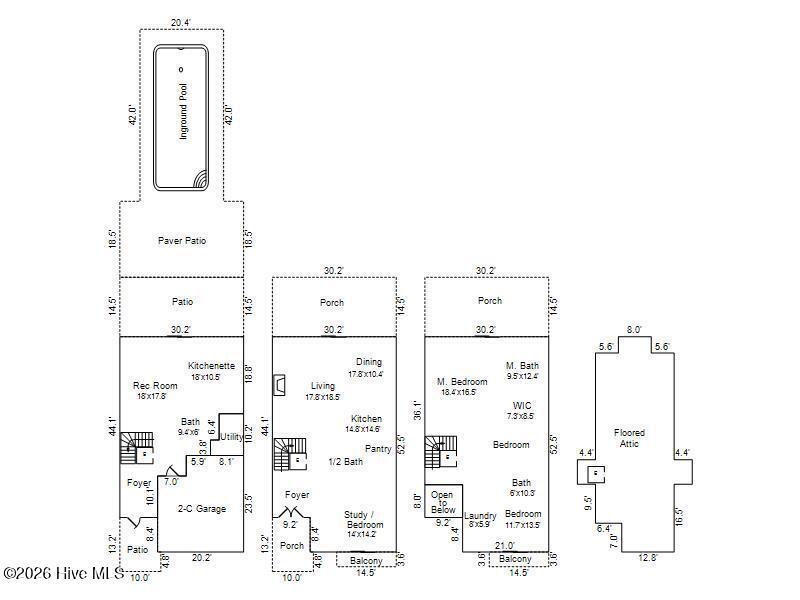
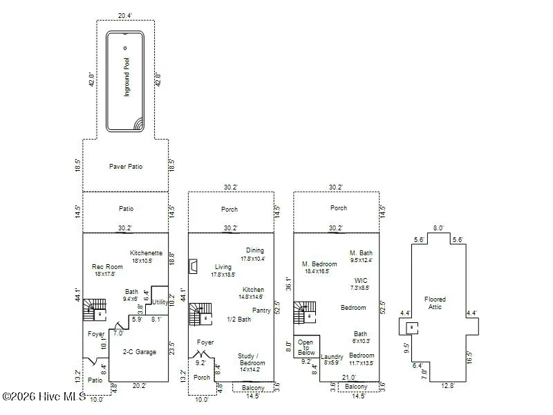
Image 4: Floor Plan 205 Back
Bedrooms 4
Total Baths 4
Full Baths 3
Square Feet 3923
Acreage 0.28
Status Active Under Contract
MLS # 100548377
County Carteret
More Info
Category Residential - Single Family
Status Active Under Contract
Square Feet 3923
Acreage 0.28
MLS # 100548377
County Carteret
Waterfront Luxury Redefined... Welcome to an extraordinary waterfront Intracoastal Waterway sanctuary where timeless craftsmanship meets modern luxury. This impeccably designed residence offers refined elegance, exceptional attention to detail, and resort-style amenities- crafted for those who expect nothing less than the best. From the moment you arrive, the home impresses with its paver driveway, mature professional landscaping, inground pool, and expansive porches overlooking the ICW. Plus Boat Slip 03C Dock D. This one-of-a-kind home draws inspiration from the panoramic views. The result is a blend of coastal living and cutting edge design with a French flair. Inside, wide-plank white oak hardwood floors, soaring 10-foot ceilings, and exquisite custom millwork create a warm, yet sophisticated ambiance. A dramatic two-story foyer, shiplap accents, and antique barn doors, add character and charm throughout. The gourmet kitchen is a showpiece, featuring custom cabinetry with soft-close drawers, lighted glass cabinets, farmhouse sink, walk-in pantry, and an oversized solid marble island perfect for entertaining. Under-cabinet lights, and premium finishes make this space as functional, as it is beautiful. This 4 bedroom, 3 1/2 bath residence has an elevator servicing to the 4th floor attic. Offering unique storage options not often found in Charleston Style homes. Designed for effortless living and entertaining, the home offers an outdoor kitchen, gas fire pit, gas-heated pool, waterside porches enclosed with motorized hurricane screens. A private hog slat walkway and viewing platform extend over the water , complemented by a seawall and decorative second level retaining wall. Additional highlights include: Whole house Generac generator, Surround Sound/ Security System, Epoxy Flooring in Garage, Gas interior fireplace, some Tongue-and Groove Ceilings, Tankless Rinnai Water Heater, Fenced in yard, nestled within the gated community of Cannonsgate.
Location not available

Exterior Features

  • Construction Single Family
  • Siding Aluminum
  • Exterior See Remarks
  • Roof Aluminum
  • Garage Yes
  • Garage Description Garage
  • Water County Water
  • Sewer Municipal Sewer, Aqua Sewer
  • Lot Dimensions 50x301x40x270
  • Lot Description See Remarks, Bulkhead, Pier, Sound Side, Water Access Comm

Interior Features

  • Appliances Built-In Microwave, Built-In Electric Oven, Washer, Refrigerator, Dryer, Dishwasher, Tankless Water Heater, Cooktop, Generator
  • Heating Heat Pump, Forced Air, Zoned
  • Cooling Heat Pump
  • Basement None
  • Fireplaces Yes
  • Fireplaces Description Gas Log
  • Living Area 3,923 SQFT
  • Year Built 2017

Neighborhood & Schools

  • Subdivision Cannonsgate
  • Elementary School Bogue Sound
  • Middle School Broad Creek
  • High School Croatan

Financial Information

  • Parcel ID 630504724916000

Additional Services

Internet Service Providers

Listing Information

Listing Provided Courtesy of MALONE REALTY
The data for this listing came from the Hive MLS.
Listing data is current as of 05/23/2026.

Contact Our Agent

By clicking “Submit”, you agree that Beach Homes Realty, its affiliates, and real estate professionals may contact you by phone, text, or email to any phone number and email address you provided, including by automated means, even if your number is on a federal, state, or our internal Do Not Call list. You also agree to our Terms of Use and Privacy Policy.