Beach Homes Realty
Enter City or Zip

302 breckenridge lane

New Bern, NC 28560

$515,000

4 BEDS 3 BATHS
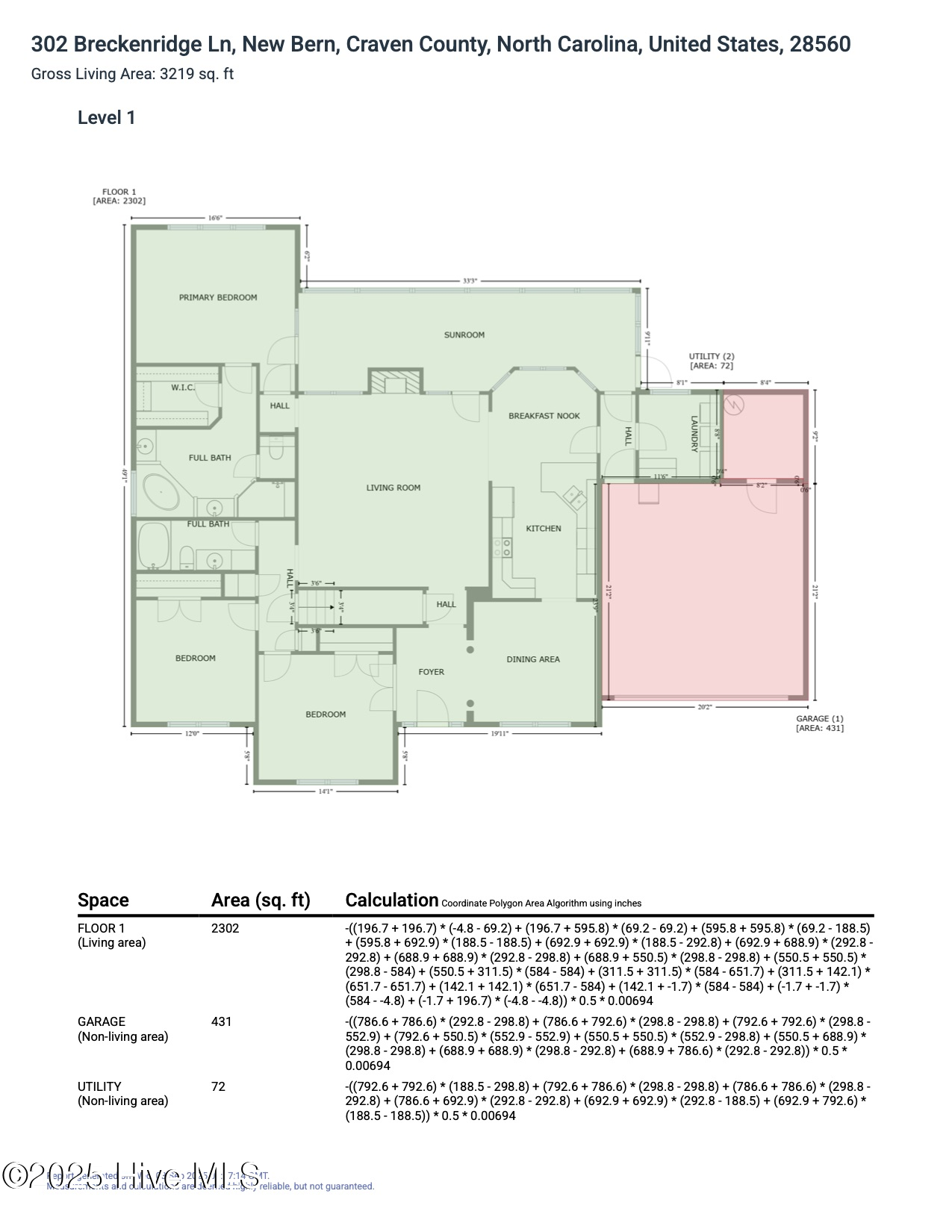
3,219 SQFT0.4 AC LOT
Residential - Single Family
Waterfront
Image 1: 025a5682
Image 2
Image 3
Image 4: 025a5685
Bedrooms 4
Total Baths 3
Full Baths 3
Square Feet 3219
Acreage 0.4
Status Active
MLS # 100532519
County Craven
More Info
Category Residential - Single Family
Status Active
Square Feet 3219
Acreage 0.4
MLS # 100532519
County Craven
Welcome to 302 Breckenridge, where everyday living feels like a retreat on the lake. This 4-bedroom, 3-bath beauty spans over 3,200 square feet and has been lovingly upgraded to blend comfort, charm, and practicality. From the moment you step inside, you'll realize this is more than a house—it's a place where life slows down and memories flourish. The main level shines with brand-new LVP flooring (2025) and abundant natural light. A four-seasons sunroom (2022) stretches across the back, offering the perfect perch to sip morning coffee, watch the lake sparkle, or cozy up with a book on a rainy afternoon. The kitchen, complete with a Whirlpool refrigerator that conveys, flows seamlessly into the living spaces, making it perfect for gatherings. Upstairs, the home reveals a whimsical twist: a studio-style retreat. This thoughtfully finished space includes a living room, private bedroom with dual closets, a small office, a full bath, and a walk-in closet cleverly designed along the long hall leading to the attic. It's ideal for guests, multi-generational living, or a quiet creative hideaway. The outdoor spaces tell their own story. A brand-new fortified roof was just put on this year (2025). A 30-foot retaining wall (2022) and leveled shoreline create a peaceful, walkable path along the water, while a professionally installed aluminum fence (2021) offers both charm and security. Gardeners will delight in the 12 raised cypress beds and a backyard orchard overflowing with apples, peaches, figs, cherries, pomegranates, olives, bananas, grapes, and more—plus perennial flowers and berries that keep the landscape colorful and fruitful year after year. Imagine harvesting peaches in the summer, pomegranates in the fall, and blueberries in the spring—all from your own yard.
Location not available

Exterior Features

  • Construction Single Family
  • Siding Architectural Shingle
  • Roof Architectural Shingle
  • Garage Yes
  • Garage Description Concrete
  • Sewer Septic Tank
  • Lot Dimensions 158x170x16x17x12x160
  • Lot Description Deeded Waterfront

Interior Features

  • Heating Electric, Heat Pump
  • Cooling Central Air
  • Living Area 3,219 SQFT
  • Year Built 2006

Neighborhood & Schools

  • Subdivision River Bluffs
  • Elementary School W. Jesse Gurganus
  • Middle School Tucker Creek
  • High School Havelock

Financial Information

  • Parcel ID 7-049 -167

Additional Services

Internet Service Providers

Listing Information

Listing Provided Courtesy of eXp Realty
The data for this listing came from the Hive MLS.
Listing data is current as of 12/15/2025.

Contact Our Agent

By clicking “Submit”, you agree that Beach Homes Realty, its affiliates, and real estate professionals may contact you by phone, text, or email to any phone number and email address you provided, including by automated means, even if your number is on a federal, state, or our internal Do Not Call list. You also agree to our Terms of Use and Privacy Policy.