Beach Homes Realty
Enter City or Zip
WaterfrontNew Listing

605 fort fisher boulevard s

Kure Beach, NC 28449

$2,395,000

4 BEDS 4 BATHS
2,461 SQFT0.1 AC LOT
Residential - Townhouse
WaterfrontNew Listing
Image 1
Image 2: Unit on Right
Image 3: 11_drone
Image 4: 23_kitchen
Bedrooms 4
Total Baths 4
Full Baths 3
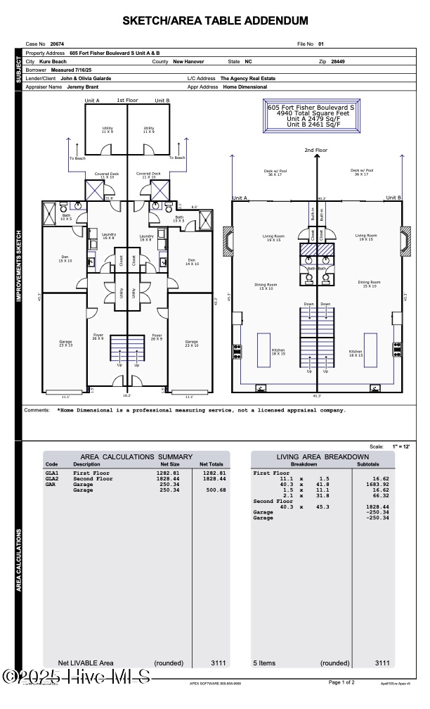
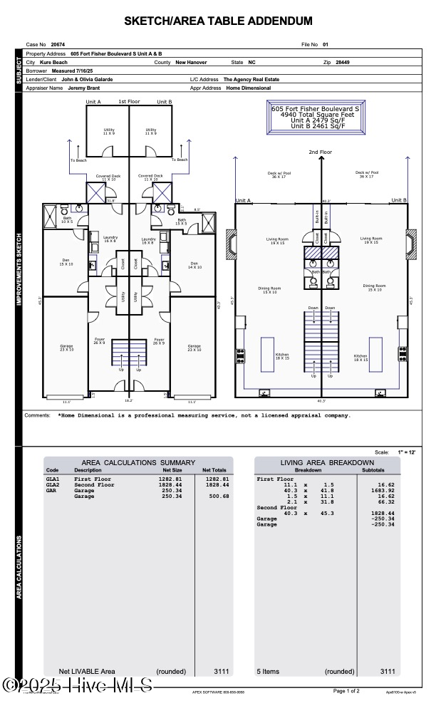
Square Feet 2461
Acreage 0.1
Status Active
MLS # 100544110
County New Hanover
More Info
Category Residential - Townhouse
Status Active
Square Feet 2461
Acreage 0.1
MLS # 100544110
County New Hanover
Welcome to 605B Fort Fisher Blvd, the final opportunity to own one of the larger oceanfront residences in the exclusive Villas Del Mar community of Kure Beach. This newly constructed home offers uninterrupted ocean views, direct beach access, and a level of modern coastal luxury that is rarely available on the Carolina coast. This 4-bedroom, 3.5-bath home with a spacious bonus room spans approximately 2,461 sq. ft. and is thoughtfully designed for elevated seaside living. The main level features an open-concept layout with engineered hardwood flooring, a chef's kitchen with a premium appliance package, quartz countertops with a waterfall island, and custom cabinetry. A dry bar enhances the entertaining experience, flowing seamlessly to the oceanfront deck where indoor and outdoor living come together effortlessly. The primary suite is a private coastal retreat, complete with a vaulted tongue-and-groove ceiling, its own oceanfront balcony, and a custom wardrobe. The spa-inspired ensuite includes a walk-in shower with rainfall fixtures, skylights, and ambient LED lighting for a refined, tranquil atmosphere. Multiple oceanfront decks offer front-row views of the shoreline, while the heated infinity-edge spa pool creates a resort-style setting just steps from your door. PGT WinGuard hurricane-impact windows and superior structural finishes provide peace of mind without compromising style. This is a rare chance to secure brand-new oceanfront construction in one of Kure Beach's most boutique communities — and the last opportunity for one of the premier, larger-floorplan units. A perfect fit for full-time coastal living, a luxury second home, or a high-end investment property. Opportunities like this don't come twice.
Location not available

Exterior Features

  • Construction Condo
  • Siding Metal
  • Exterior Outdoor Shower, DP50 Windows, Storm Doors
  • Roof Metal
  • Garage No
  • Garage Description Concrete
  • Water County Water
  • Sewer County Sewer
  • Lot Dimensions 25 x 102.12 X 25
  • Lot Description Dunes, Deeded Beach Access, Deeded Waterfront, Ocean Side

Interior Features

  • Appliances Mini Refrigerator, Built-In Microwave, Refrigerator, Disposal, Dishwasher
  • Heating Fireplace(s), Electric, Heat Pump
  • Cooling Central Air
  • Living Area 2,461 SQFT
  • Year Built 2025

Neighborhood & Schools

  • Subdivision Not In Subdivision
  • Elementary School Carolina Beach
  • Middle School Murray
  • High School Ashley

Financial Information

  • Parcel ID R09405-007-019-000

Additional Services

Internet Service Providers

Listing Information

Listing Provided Courtesy of The Agency Charlotte
The data for this listing came from the Hive MLS.
Listing data is current as of 12/10/2025.

Contact Our Agent

By clicking “Submit”, you agree that Beach Homes Realty, its affiliates, and real estate professionals may contact you by phone, text, or email to any phone number and email address you provided, including by automated means, even if your number is on a federal, state, or our internal Do Not Call list. You also agree to our Terms of Use and Privacy Policy.