Beach Homes Realty
Enter City or Zip

115 kimberly avenue

LONG BEACH TOWNSHIP, NJ 08008

$3,275,000

6 BEDS 5 BATHS
3,443 SQFT0.17 AC LOT
Residential-Detached
Image 1
Image 2
Image 3
Image 4
Bedrooms 6
Total Baths 5
Full Baths 3
Square Feet 3443
Acreage 0.17
Status Pending
MLS # NJOC2030434
County OCEAN
More Info
Category Residential-Detached
Status Pending
Square Feet 3443
Acreage 0.17
MLS # NJOC2030434
County OCEAN
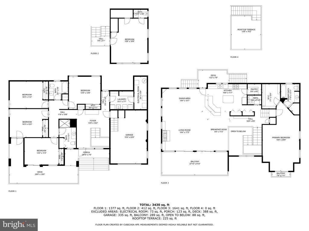
Sailor's Solace | Located across from the Brant Beach Yacht Club, 115 W Kimberly Ave offers a seamless blend of coastal charm and spacious comfort. Designed by renowned architect Oram Tonge, who has crafted over 4,000 structures during his 35-year career, this 3,443-square-foot home features 6 bedrooms, 3 full baths, and 2 half baths, with sweeping bay views visible from the rooftop deck and expansive porches. Recent updates, including new siding, decks, and sleek, unobstructed stainless railings, enhance its allure. The nearly 30-foot-long master bedroom provides a luxurious retreat, offering ample space to relax and unwind. Two of the bedrooms open directly onto a porch, inviting you to step outside and soak in the refreshing coastal air. The other two bedrooms offer additional space for beach and bay lovers, perfect for accommodating family or guests. On the mid-level, a tranquil bedroom overlooking Barnegat Bay is perfect for a midday nap after mornings filled with sailing camp or beach adventure. Set on a 75' x 100' lot with room for a backyard pool, this home is ideal for families. Enjoy easy access to sailing and swim camps (with membership) , nearby beaches, the Barrel Café, and a short stroll to church. Whether you're unwinding on the rooftop with a glass of wine or soaking up the vibrant coastal lifestyle, 115 W Kimberly Avenue is more than just a home—it’s a destination. Come experience the epitome of Jersey Shore living. Property has weekly tenants through Mid September. Please call for available showing times.
Location not available

Exterior Features

  • Style Coastal
  • Construction Single Family
  • Siding Frame, Vinyl Siding, Stick Built
  • Exterior Awning(s), Exterior Lighting, Gutter System, Outside Shower, Roof Deck
  • Roof Shingle
  • Garage Yes
  • Garage Description 1
  • Water Public
  • Sewer Public Sewer

Interior Features

  • Appliances Built-In Range, Dishwasher, Dryer - Gas, Energy Efficient Appliances, Intercom, Oven - Single, Oven/Range - Gas, Refrigerator, Washer, WaterHeater
  • Heating Forced Air, Programmable Thermostat
  • Cooling Central A/C
  • Fireplaces 1
  • Living Area 3,443 SQFT
  • Year Built 1994

Neighborhood & Schools

  • Subdivision BRANT BEACH
  • Elementary School ETHEL JACO
  • Middle School SOUTHERN REGIONAL M.S.
  • High School SOUTHERN REGIONAL H.S.

Financial Information

  • Zoning R50

Additional Services

Internet Service Providers

Listing Information

Listing Provided Courtesy of SERHANT. New Jersey LLC - (609) 494-2800
© Bright MLS. All rights reserved. Listings provided by Bright MLS from various brokers who participate in IDX (Internet Data Exchange). Information deemed reliable but not guaranteed.
Listing data is current as of 12/15/2025.

Contact Our Agent

By clicking “Submit”, you agree that Beach Homes Realty, its affiliates, and real estate professionals may contact you by phone, text, or email to any phone number and email address you provided, including by automated means, even if your number is on a federal, state, or our internal Do Not Call list. You also agree to our Terms of Use and Privacy Policy.