Beach Homes Realty
Enter City or Zip

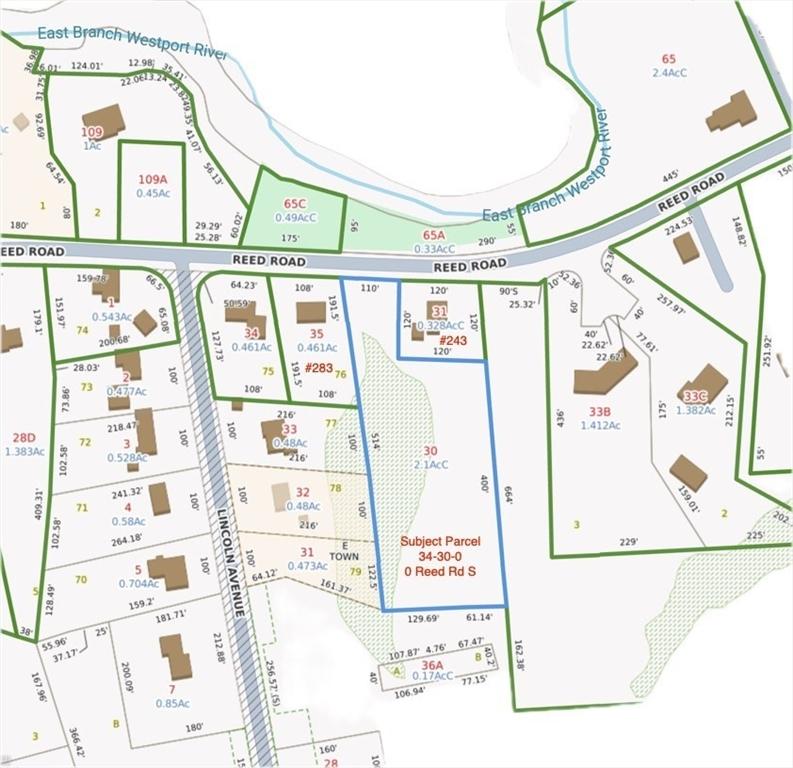
0 reed rd (ss)

Westport, MA 02790

$25,000

2.5 AC LOT
Land - Non-Buildable
New Listing
Image 1
Image 2
Acreage 2.5
Status Active
MLS # 73459560
County Bristol
More Info
Category Land - Non-Buildable
Status Active
Acreage 2.5
MLS # 73459560
County Bristol
Lot in North Westport with approximately 2.1 acres, as shown on plot plan. However, Assessor's field card lists lot as 2.5 acres, with approximately 110' of frontage on Reed Rd. between house # 243 and # 283. Being sold "As is As Seen", no percs or engineering, no wetlands or uplands have been determined, buyers and buyers agent's to do the due diligence. Seller nor their representatives make NO representation as to the buildability of this lot, parcel 34-30-0. PLEASE REVIEW!
Location not available

Exterior Features

  • Construction Single Family
  • Garage No
  • Water Private
  • Sewer Private Sewer
  • Lot Description Wetlands

Financial Information

  • Parcel ID M:34 L:30,2998677
  • Zoning R1

Additional Services

Internet Service Providers

Listing Information

Listing Provided Courtesy of Even Keel Realty, Inc.
Listing Agent Kevin Melo
The property listing data and information, or the Images, set forth herein were provided to MLS Property Information Network, Inc. from third party sources, including sellers, lessors, landlords and public records, and were compiled by MLS Property Information Network, Inc. The property listing data and information, and the Images, are for the personal, non commercial use of consumers having a good faith interest in purchasing, leasing or renting listed properties of the type displayed to them and may not be used for any purpose other than to identify prospective properties which such consumers may have a good faith interest in purchasing, leasing or renting. MLS Property Information Network, Inc. and its subscribers disclaim any and all representations and warranties as to the accuracy of the property listing data and information, or as to the accuracy of any of the Images, set forth herein.
Listing data is current as of 12/17/2025.

Contact Our Agent

By clicking “Submit”, you agree that Beach Homes Realty, its affiliates, and real estate professionals may contact you by phone, text, or email to any phone number and email address you provided, including by automated means, even if your number is on a federal, state, or our internal Do Not Call list. You also agree to our Terms of Use and Privacy Policy.