Beach Homes Realty
Enter City, Zip or MLS

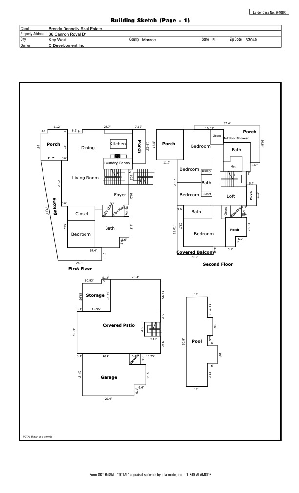
36 cannon royal drive

Shark Key, FL 33040

$2,500,000

14 AC LOT
Vacant Land
Image 1: 36 Cannon Royal
Image 2: 36 Cannon Royal
Image 3
Image 4
Acreage 14
Status Active
MLS # 617893
County Monroe
More Info
Category Vacant Land
Status Active
Acreage 14
MLS # 617893
County Monroe
Don't miss this rare and exceptional opportunity to build your dream home in the prestigious, gated community of Shark Key --without the wait! 36 Cannon Royal is an extraordinary west-facing lot that spans nearly 14,500 square feet and boasts approximately 130 feet of waterfront, delivering breathtaking sunset views over the Gulf waters. The sale of this vacant lot conveys the completed engineered architectural plans for a 4,624-square-foot single-family residence, along with a coveted ROGO permit and building permits already secured and in hand. The thoughtfully designed 5-bedroom, 4.5-bath residential blueprint features an elevator, a high-end chef's kitchen, loft, outdoor shower, fire pit, outdoor kitchen, and multiple porches/balconies that set the tone for a seamless indoor-outdoor lifestyle. The expansive fifty foot resort-style pool with sun ledge completes the vision of perfectly tailored island life. Additional conveniences include a two car garage, ample storage, and large covered patio on the ground level. This is far more than vacant land--it is a fully realized, ready-to-build masterpiece for luxurious coastal living. Shark Key residents enjoy exclusive amenities including a clubhouse, private beach, swimming lagoon, and pickleball/tennis courts- just minutes away from the world-class dining, arts, and entertainment of iconic Key West. Current architectural plans of 36 Cannon Royal are pending review by Shark Key ARB.
Location not available

Exterior Features

  • Garage No

Neighborhood & Schools

  • Subdivision 05 - Stock Island to Shark Key

Financial Information

  • Parcel ID 8736720
  • Zoning IS - Improved Subivision District

Additional Services

Internet Service Providers

Listing Information

Listing Provided Courtesy of Brenda Donnelly Real Estate LLC
Listing Agent Brenda Donnelly
Florida Keys, MLS
Listing data is current as of 05/23/2026.

Contact Our Agent

By clicking “Submit”, you agree that Beach Homes Realty, its affiliates, and real estate professionals may contact you by phone, text, or email to any phone number and email address you provided, including by automated means, even if your number is on a federal, state, or our internal Do Not Call list. You also agree to our Terms of Use and Privacy Policy.