Beach Homes Realty
Enter City, Zip or MLS

814 esplanade

Redondo Beach, CA 90277

$4,799,000

3 BEDS 3 BATHS
2,413 SQFT0.14 AC LOT
Residential - Townhouse
Waterfront
Image 1
Image 2
Image 3
Image 4
Bedrooms 3
Total Baths 3
Full Baths 2
Square Feet 2413
Acreage 0.1415
Status Active
MLS # SB25262009
County Los Angeles
More Info
Category Residential - Townhouse
Status Active
Square Feet 2413
Acreage 0.1415
MLS # SB25262009
County Los Angeles
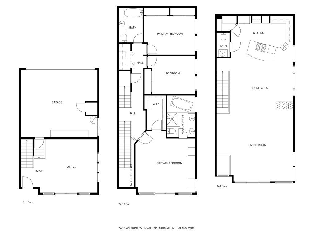
Three levels of direct ocean-view living define this rare South Redondo Beach residence—each floor a private vantage point overlooking the Pacific from Palos Verdes to Malibu. Set along the quieter stretch of The Esplanade, just steps from the Knob Hill beach stairs and minutes from Riviera Village, this three-bedroom, two-and-a-half-bath luxury oceanfront residence home offers front-row coastal living with rare added privacy. Built in the early 2000s as one of only three homes in a boutique development, this newer-construction property blends timeless design with modern livability. Tall ceilings (10' on the third floor and 9' on the first and second floors), genuine walnut and travertine floors,natural light, and walls of glass connect every interior space to the horizon. The open-concept main level flows effortlessly between living, dining, and kitchen areas, all leading to a full-width ocean-view deck perfect for morning coffee or sunset gatherings. The chef's kitchen combines form and function with stone counters, custom cabinetry, and premium appliances. Upstairs, the primary suite enjoys its own ocean-view balcony, walk-in closet, and spa-inspired bath with dual vanities, soaking tub, and separate shower. Two additional bedrooms, a full laundry room, and ample storage complete the upper levels. A reverse floor plan with entertaining and main living on the upper level adds to the security and privacy of this remarkable oceanfront find. On the entry level floor, a flexible beach room opens to an elevated patio and landscaped yard area—set above street level for enhanced privacy and reduced impact from passersby or pets. The space is ideal as a guest suite, home office, or media lounge with a coastal backdrop. A direct-entry two-car garage offers convenience and security, with easy access in and out of South Redondo via Knob Hill or Avenue A—an uncommon luxury for an oceanfront address. From this location, everything is within reach: the sand, the pier, and the boutiques and cafés of Riviera Village, Palos Verdes and beyond, Torrance shopping to the east and neighboring beach cities along The Strand to the North. Yet inside this home, the feeling is calm and removed—quiet, connected, and unmistakably the epitome of South Bay front row living.
Location not available

Exterior Features

  • Style SeeRemarks
  • Construction Condo
  • Siding Stucco
  • Roof Flat
  • Garage Yes
  • Garage Description DirectAccess, Garage
  • Water Public
  • Sewer PublicSewer
  • Lot Description FrontYard, NearPublicTransit, SlopedUp

Interior Features

  • Appliances Dishwasher, Freezer, GasCooktop, Disposal, GasRange, IndoorGrill, Microwave
  • Heating Central
  • Cooling None
  • Fireplaces Yes
  • Fireplaces Description DiningRoom, LivingRoom, MultiSided, SeeThrough
  • Living Area 2,413 SQFT
  • Year Built 2003

Neighborhood & Schools

  • Elementary School Alta Vista
  • Middle School Parras
  • High School Redondo Union

Financial Information

  • Parcel ID 7509001030

Additional Services

Internet Service Providers

Listing Information

Listing Provided Courtesy of Chhabria Real Estate Company - (310) 902-7227
The data for this listing came from the California Regional MLS
Listing data is current as of 02/11/2026.
California DRE #02247371

Contact Our Agent

By clicking “Submit”, you agree that Beach Homes Realty, its affiliates, and real estate professionals may contact you by phone, text, or email to any phone number and email address you provided, including by automated means, even if your number is on a federal, state, or our internal Do Not Call list. You also agree to our Terms of Use and Privacy Policy.