Beach Homes Realty
Enter City, Zip or MLS

10361 mcdougall st

Castroville, CA 95012

$400,000

0.17 AC LOT
Land
Price Changed
Image 1
Image 2
Image 3
Image 4
Acreage 0.17
Status Active
MLS # 41125281
County Monterey
More Info
Category Land
Status Active
Acreage 0.17
MLS # 41125281
County Monterey
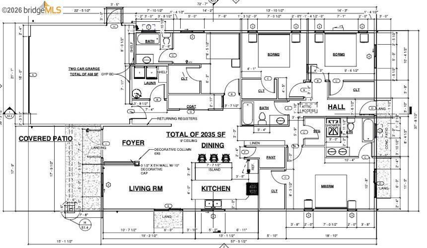
Residential lot in Castroville with approved building plans included for a 2,035 square foot home featuring 4 bedrooms, 3 bathrooms, and an attached two-car garage. Utilities are fully connected. Approved plans provide an opportunity to proceed with construction without an extended entitlement timeline. Located in an established neighborhood with convenient access to local amenities and commuter routes.
Location not available

Exterior Features

  • Construction Single Family
  • Garage No
  • Water Public
  • Sewer PublicSewer
  • Lot Description StreetLevel

Neighborhood & Schools

  • Subdivision Other

Financial Information

  • Parcel ID 030122011000
  • Zoning R1

Additional Services

Internet Service Providers

Listing Information

Listing Provided Courtesy of HOMECOIN.COM
The data for this listing came from the California Regional MLS
Listing data is current as of 04/08/2026.
California DRE #02247371

Contact Our Agent

By clicking “Submit”, you agree that Beach Homes Realty, its affiliates, and real estate professionals may contact you by phone, text, or email to any phone number and email address you provided, including by automated means, even if your number is on a federal, state, or our internal Do Not Call list. You also agree to our Terms of Use and Privacy Policy.