Beach Homes Realty
Enter City or Zip

107 beaver dam road

Fairhope, AL 36532

$575,000

4 BEDS 3.5 BATHS
3,188 SQFT0.36 AC LOT
Residential - Creole
Image 1: Front Of Structure
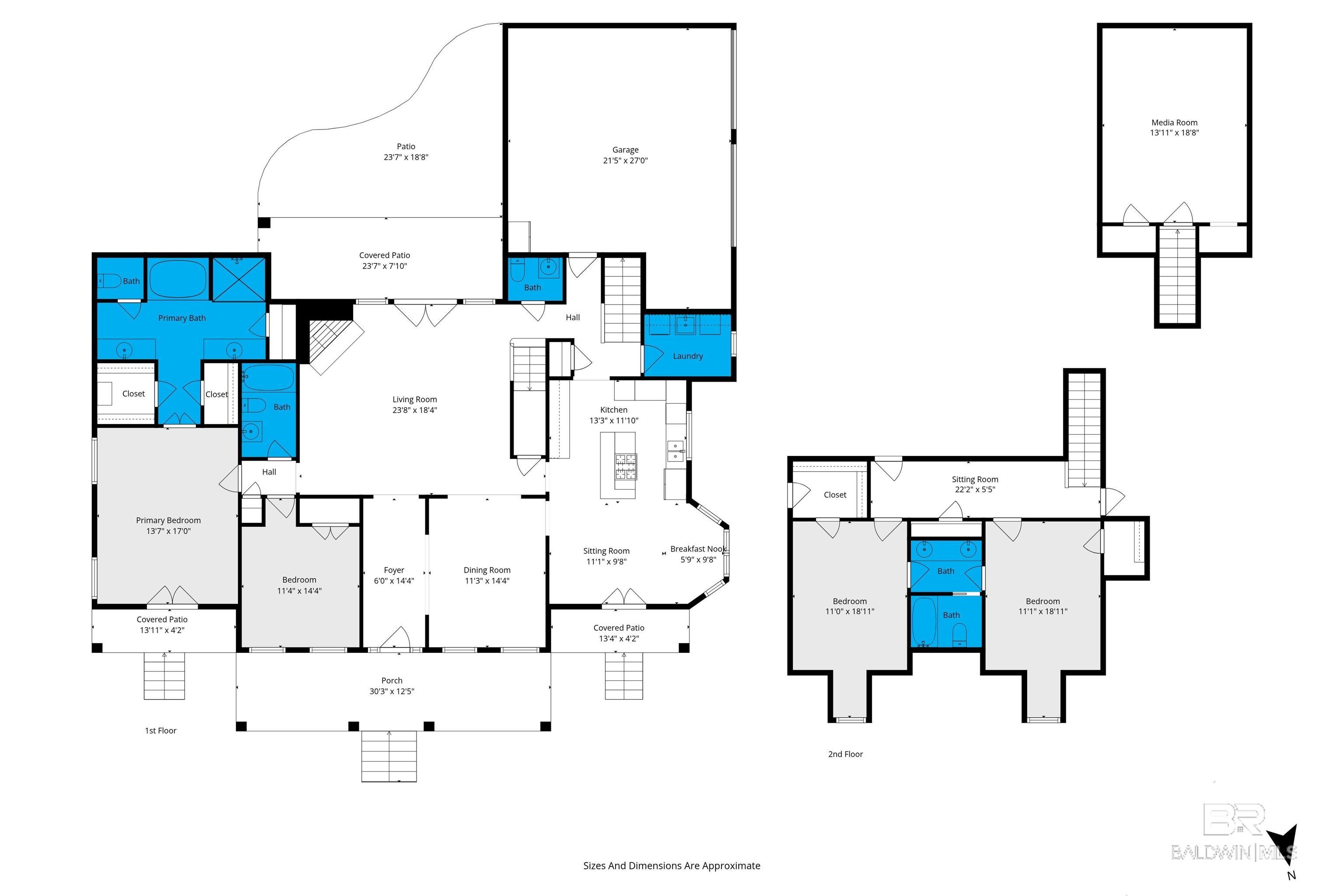
Image 2: Floor Plan
Image 3: Living Room
Image 4: Dining Area
Bedrooms 4
Total Baths 4
Full Baths 3
Square Feet 3188
Acreage 0.363
Status Active
MLS # 386681
County Baldwin
More Info
Category Residential - Creole
Status Active
Square Feet 3188
Acreage 0.363
MLS # 386681
County Baldwin
Best Price in Rock Creek per Square Foot for Available Homes. REDUCED $25k! Beautifully designed and thoughtfully upgraded, this Rock Creek Creole offers timeless Southern architecture paired with modern convenience. A newer Fortified roof provides peace of mind and discounted insurance, while smart home technology adds everyday ease and comfort. The primary suite is on the main level, along with a second bedroom for a nursery or home office. Upstairs features a media room with a 132-inch projector screen, surround sound, and all the custom electronics to run it — can be purchased separately. Both upstairs bedrooms are spacious with walk-in closets and spacious shared bathroom. Tech lovers will appreciate the CAT6 wiring in the attic, built-out storage in both the garage and attic, multiple TVs and wall mounts, and whole-house audio with speakers even in the garage — all controlled through iPad or Android devices. A rare combination of classic Creole charm and modern tech upgrades in one of Baldwin County’s many golf course communities! Property could use of a few cosmetic updates but that is reflecterd in the price.. Buyer to verify all information during due diligence.
Location not available

Exterior Features

  • Style Creole
  • Construction Single Family
  • Siding Brick, Stucco
  • Roof Dimensional, Fortified Roof
  • Garage Yes
  • Water Public
  • Sewer Public Sewer
  • Lot Description Less than 1 acre

Interior Features

  • Appliances Dishwasher, Convection Oven, Double Oven, Gas Range
  • Heating Electric
  • Cooling Central Electric (Cool), Ceiling Fan(s)
  • Fireplaces Description Gas Log, Great Room
  • Living Area 3,188 SQFT
  • Year Built 1995
  • Stories 1

Neighborhood & Schools

  • Subdivision Rock Creek
  • Elementary School Fairhope East Elementary
  • Middle School Fairhope Middle
  • High School Fairhope High

Financial Information

  • Parcel ID 4309320001052
  • Zoning PUD

Additional Services

Internet Service Providers

Listing Information

Listing Provided Courtesy of NextHome Gulf Coast Living - (251) 501-4501
Listing Agent Ginny Stopa
The property listing data and information, or the Images, set forth herein were provided to Baldwin County Association of Realtors. from third party sources, including sellers, lessors, landlords and public records, and were compiled by Baldwin County Association of Realtors. The property listing data and information, and the Images, are for the personal, non commercial use of consumers having a good faith interest in purchasing, leasing or renting listed properties of the type displayed to them and may not be used for any purpose other than to identify prospective properties which such consumers may have a good faith interest in purchasing, leasing or renting. Baldwin County Association of Realtors and its subscribers disclaim any and all representations and warranties as to the accuracy of the property listing data and information, or as to the accuracy of any of the Images, set forth herein.
Listing data is current as of 12/07/2025.

Contact Our Agent

By clicking “Submit”, you agree that Beach Homes Realty, its affiliates, and real estate professionals may contact you by phone, text, or email to any phone number and email address you provided, including by automated means, even if your number is on a federal, state, or our internal Do Not Call list. You also agree to our Terms of Use and Privacy Policy.